UPDATE – (Oct. 13, 2025) – A community meeting will be held on Thursday, October 23, to share information and gather feedback on the proposed ʻĀinakō Subdivision Housing Project in Hilo.
The County of Hawai‘i Office of Housing and Community Development says the open house-style meeting will be held from 3 p.m. to 5 p.m. at the Aupuni Center Conference Room at 101 Pauahi Street in Hilo.
“We invite residents to join us, connect with our team, and share their thoughts on this housing initiative,” said Mayor Kimo Alameda in a news release. “By working together, we can expand affordable housing opportunities for local families and strengthen our communities.”
FIRST REPORT
(BIVN) – A planned affordable housing project on 61-acres of land in Hilo is detailed in a draft environmental assessment published in the October 8th issue of The Environmental Notice.
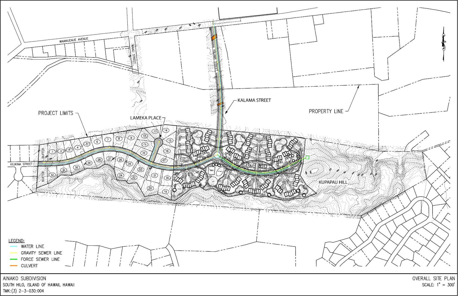
The future ʻĀinakō Subdivision Housing Project would consist of 144 single-family and multi-family housing units, constructed in two phases. Phase 1 would consist of 82 townhomes and 28 flats, and Phase 2 would include up to 34 single-family units.
The units would fall in the price range of approximately $363,100 to $635,500. “The target population for the Project is Hilo’s workforce population (typically teachers, nurses, fire and/or police department employees or staff, and county employees), professional services (scientists, engineers, health care, and information technology employees), and skilled trades personnel (construction, utilities, and manufacturing employees),” the draft EA states.
The County of Hawai‘i Office of Housing and Community Development is developing the project on County-owned land. Access to the units “will be primarily from a new road (Kalama Street) to be constructed during Phase 1 across state land” mauka of the Hale ʻĀnuenue Restorative Care Center on Waiānuenue Avenue.
The planned project “would make a small but meaningful contribution to the significant affordable housing shortage in the local market area and is not expected to adversely affect demand for similar private-sector housing projects,” the document states.
From the “Purpose and Need” section the Draft EA:
The purpose of the Project is to assist in meeting the current demand for affordable housing on the Island of Hawaiʻi. According to a 2016 report by the State of Hawai‘i Department of Business, Economic Development, and Tourism (DBEDT), Hawai‘i would need 64,700 affordable housing units to meet the demand by 2025, and despite modest growth in housing, the gap continues to widen. The situation is particularly dire for extremely low-income families, with only 29 available affordable units for every 100 families in need in 2022 (Ordonio, 2022). Prospective tenants may face years-long waits for Section 8 vouchers or public housing. Even among those who are qualified to purchase homes, demand outstrips supply, driving up prices and keeping market housing unaffordable. The average home sales price on the Island of Hawai‘i in the fourth quarter of 2024 was approximately $678,000 (DBEDT, 2025).
The ʻĀinakō Subdivision Housing Project is designed to fill the housing need of the “workforce” population. These populations consist of typically teachers, nurses, fire and/or police department employees and staff, state and county engineers, and maintenance staff. The average “workforce, professional services, and/or skilled trades” family consists of working couples and families with an income from 60 to 140 percent of the area median income (AMI), as noted in the Affordable Housing Dashboard on the OHCD website (OHCD, 2025).

Figure 2 Conceptual Phase 1 and Phase 2 Layout from the ʻĀinakō Subdivision Housing Project Environmental Assessment
The Project would be particularly valuable for satisfying the housing needs of the health care workforce, as it is directly adjacent to the growing Hilo Benioff Medical Center campus. For years, the United States (U.S.) health care workforce has struggled to keep pace with demand. The Association of Community Cancer Centers’ The Future of the Health Care Workforce in Hawaii surveyed health care professionals in 2023 and noted that the main factors for the health care workforce deficits are: cost of housing (94 percent), cost of living (92 percent), and inadequate pay for health care providers (74 percent) (https://www.accc-cancer.org/home/news-media).
The Project would provide additional affordable housing in South Hilo in a neighboring area near existing desirable infrastructure, including shopping centers, schools, and other essential needs. The Project is one of more than 150 projects in the county providing from between one to several hundred affordable housing units.
Statutory 30-day public review and comment period is underway, with comments due by November 7, 2025. The project consultants are Stantec Consulting Services Inc. and Geometrician Associates.


by Big Island Video News3:12 pm
on at
STORY SUMMARY
HILO, Hawaiʻi - A Draft Environmental Assessment for the 61-acre housing project has been published in the latest issue of The Environmental Notice.